project stories: the danteum

ARCHITECTURE STUDENT PROJECT

  • Summer 1994
  • B.Arch. Year 1, Semester 2
  • Historical Architecture Documentation
  • Studio Critic: Prof. Craig Konyk

Since there was a group of 8 of us who had started architecture in the middle of the academic year (we had all transferred in from other places), the department created a bespoke summer design studio just for us so that we could catch up with the rest of the first year students. It was was pretty special to have such a small studio (usually sections were 15–18), although we didn’t realise it at the time, but we took full advantage of it.

First day of the class we were introduced to our first assignment — not design, but graphics and analysis. Drawing, decoding, and analysing an existing (unbuilt) building, which was the Danteum, designed by Giuseppe Terragni. I won’t get too much into the building here, but in 1938 Terragni was commissioned by the fascist Mussolini government to design a monument to Dante Alighieri, the author of The Divine Comedy. The building is essentially an architectural manifestation of the legendary poem itself. The site was right in the middle of the Forum of Rome, along with many other monuments from antiquity. Because of the onset of WW2, it never got built.

Prof. Konyk introduced us to the building and gave us a few photocopied pages which showed the architectural drawings, barely legible. The first task for the 8 of us was to sit together and make architectural sense of this building, going from the poorly reproduced plans we already had. We didn’t have the internet in those days, so a couple of trips to the library, and some serious puzzling out finally got us to a comfortable understanding of what was going on in this complicated building. The building is very complex, with no simple division of floors or rooms. It’s also highly symbolic and representational (e.g. 100 hypostyle columns to represent the 100 cantos of the poem.)

From a classwork perspective, each of us was expected to draw initial pencil drawings on tracing paper by the next morning. 2 plans, 2 sections, 4 elevations, site map, axonometric, perspective, and a ‘concept’ drawing. All in one day. And we actually did it. Prof. Konyk told us much later that he never expected we would all complete the work. But that wasn’t enough. After a groggy morning spent analysing and critiquing the drawings, we had to redo them formally on vellum. After another day, we re-drew them *again* using ink and mylar. These weren’t tiny sheets, either… each sheet was about 24×36. Each of us worked through most of those first 3 nights without much sleep.

I show these drawings to my students and tell them this story to let them them know that what we ask of them is no more than what was asked of us when we were studying. Architects, especially teachers, love to tell stories like this about how much they worked their asses off in the “old days” when their teachers were taskmasters. It’s probably fair to say that most students today wouldn’t do all that work without at least questioning it. But now as a teacher, I’m also not sure that’s reason enough to perpetuate such intense labour. Anyway, that’s a topic for another day.

Another thing I think about nowadays is how much easier it would have been to do this assignment today, not from a drawing perspective but from a decoding perspective. We had very little back then in terms of resources to help us understand the building — history, concept, process, spatial configuration. Now, you can read about it instantly and download the drawings and 3D models and walkthroughs in a second.

Image for post
One of the initial pencil-on-trace drawings (first day’s work assignment). Note the teacher’s marks in the lower right corner, showing us how to draw the end of a wall, and have the lines overlap.
Image for post
Rendered pencil cross-section. My rendering techniques have improved since then.
Image for post
Rendered perspective of one of the ‘rooms’. In this case, I chose the room representing the Inferno portion Dante’s poem. This room has 7 columns and 7 floor slabs and 7 ceiling slabs (representing 7 levels of hell) descending in a spiral according to the golden ratio.
Image for post
Site plan of the Forum in Rome, with the Colisseum figuring prominently. See if you can find the Danteum drawn in there somewhere.
Image for post
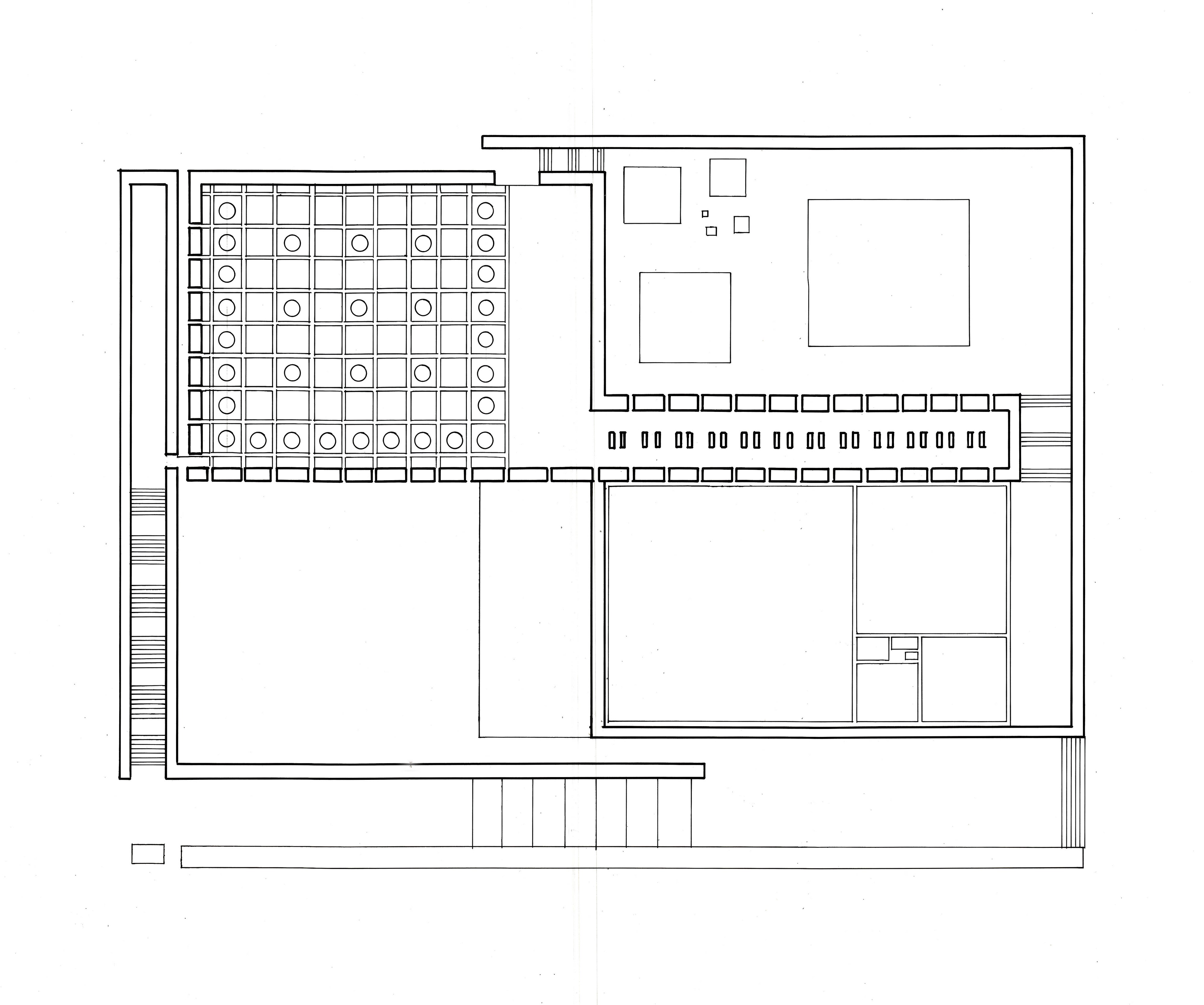
Lower level floor plan showing the entrance court, hypostyle hall with 100 columns (1 for each ‘canto’ of the poem), the Inferno room.
Image for post
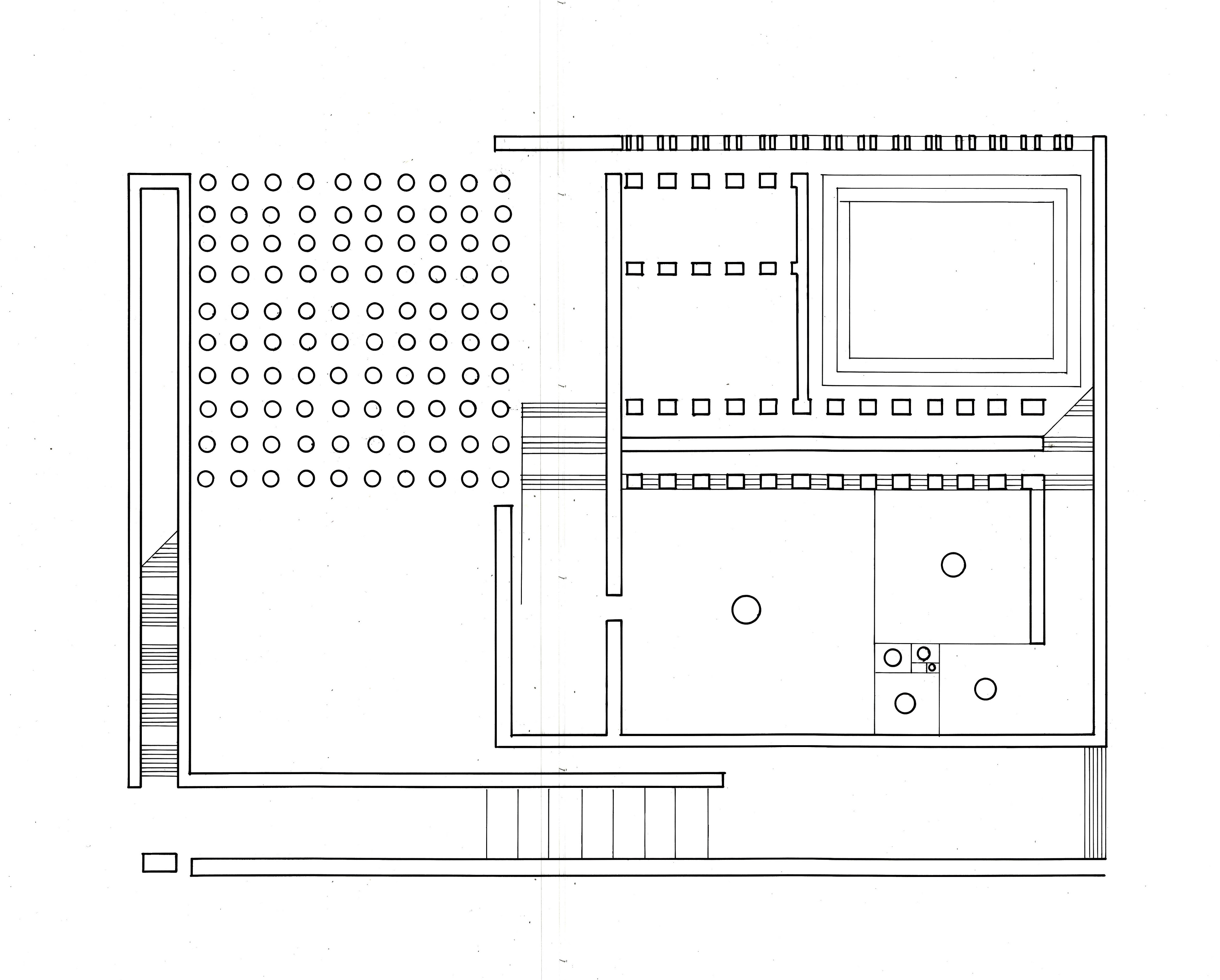
Upper level floor plan showing the Purgatorio room and the open-to-sky Paradisio room, with 33 glass columns (1 for each canto in that portion of the poem).
Image for post
Two exterior elevations (long sides) and one long section between. This was a major exercise in line weights, the exacting detail of which is not entirely visible here. The masonry hatch pattern was drawn on the reverse side of the transparent mylar in order to make it seem even lighter.
Image for post
Axonometric view showing the roofs of the Inferno and Purgatorio, and the open Paradisio room.

your thoughts?